Betoonelement elumaja Helena
Helena kodu on loodud neile, kes otsivad tasakaalu modernsuse ja ajatu lihtsuse vahel. Laudise soe loomulik puudutus või värvitud betooni selge joonekindlus annavad majale iseloomu – iga omanik saab valida, kas ta soovib kodu, mis sulandub pehmelt loodusesse või eristub minimalistliku tugevusega.
Helena kannab endas Stonelle brändi olemust – pehmust, naiselikkust ja ajatust, olles kodu, mis kutsub nii vaiksetel õhtutel kui ka sagimist täis päevadel. See on koht, kus valgus täidab ruumid ja rahu jääb kestma
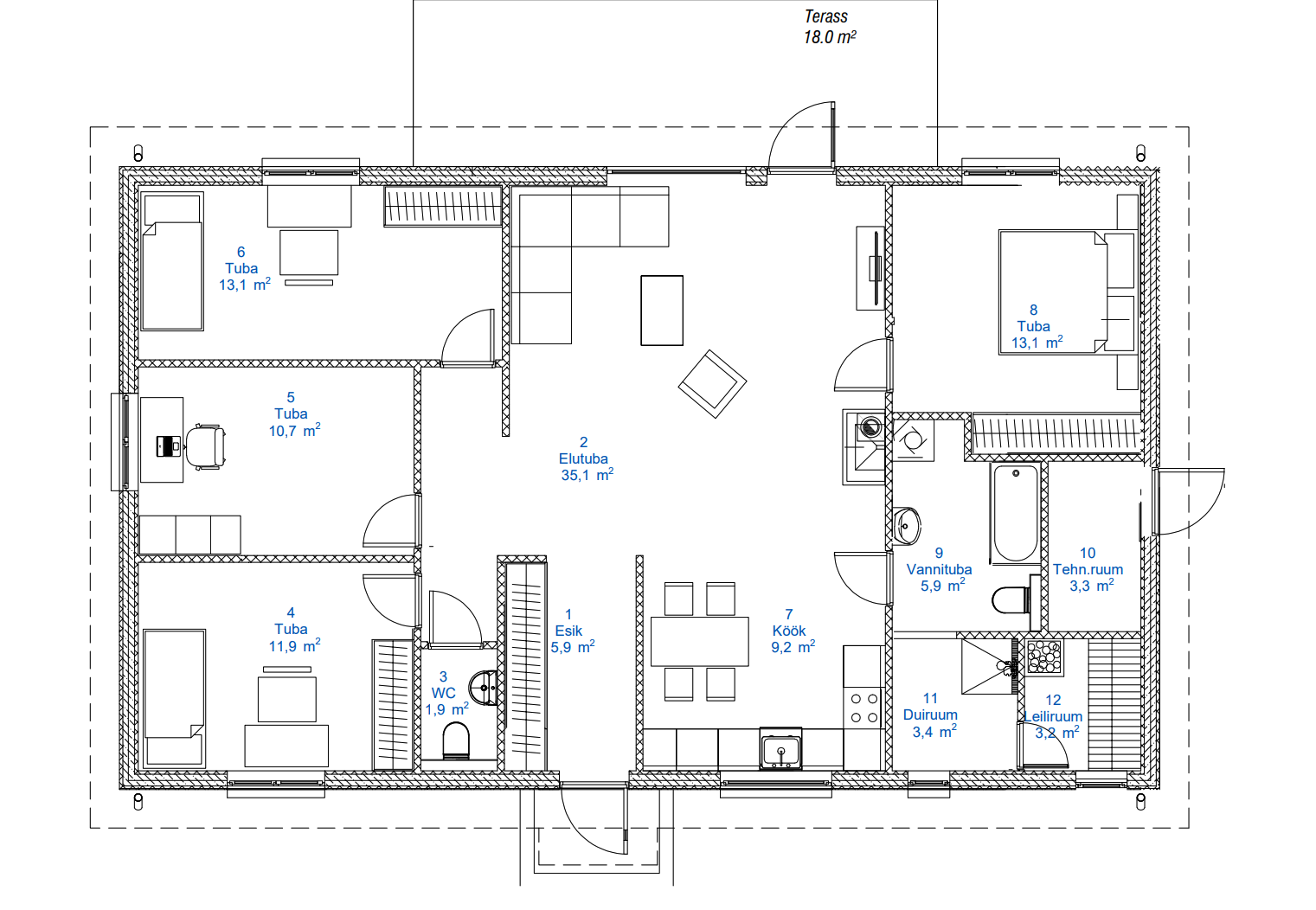
| Neto pind | 116,7 m² |
| Ehitisalune pind | 138,8 m² |
| Magamistube | 3 |
| Saun | Jah |
| WC | 2 |
| Katuse kalle | Klassikaline viilkatus |
| Fassaad | Laudis või värvitud betoon |
| Soovitatav küttesüsteem | Õhk-vesi soojuspump (võimalik ka maaküte) |
| Energiamärgis | A-klassi maja |
Dokumendid :
| Neto pind | 116,7 m² |
| Ehitisalune pind | 138,8 m² |
| Magamistube | 3 |
| Saun | Jah |
| WC | 2 |
| Katuse kalle | Klassikaline viilkatus |
| Fassaad | Laudis või värvitud betoon |
| Soovitatav küttesüsteem | Õhk-vesi soojuspump (võimalik ka maaküte) |
| Energiamärgis | A-klassi maja |
Dokumendid :
Töö etapid maja tellimisel
Kõik algab esmasest konsultatsioonist, kus kuulame ära Teie soovid ja ootused ning aitame leida just Teile sobiva lahenduse. Võite valida meie kataloogimajade hulgast või tulla oma joonistega, kui soovite täiesti personaalset custom made lahendust.
Kui projekt vajab täpsustamist või soovite muuta olemasolevat lahendust, teeme koostööd meie pikaajalise partneri – MIHO arhitektuuribürooga.
Nende abil saame viia sisse kõik vajalikud muudatused, kontrollida tehnilist teostatavust ning tagada, et lahendus vastab nii Teie soovidele kui ka ehitusnormidele. Vajadusel toetame Teid ka hoonestusõiguse, detailplaneeringu või ehitusloa taotlemisel.
Selles etapis lepime kokku, millises valmispaketis maja ehitatakse – Must karp, Valge karp või Võtmed kätte – ning koostame esialgse ajakava.
Kui esmane eskiis on valmis, koostame Teile detailse eelarve, mis hõlmab kõiki olulisi etappe – projekteerimist, tootmist, transporti, paigaldust ja objektil teostatavaid töid.
Eelarve koostatakse samm-sammult, arvestades valitud paketti (Must karp, Valge karp või Võtmed kätte) ning Teie poolt eelistatud materjale ja lahendusi (näiteks fassaad, aknad, uksed jms). Vajadusel teeme projektis muudatusi, et leida just Teie jaoks parim ja tasakaalus lahendus.
Eelarvest saate alati selge ülevaate:
- millised tööd on hinna sees,
- millised kuuluvad eritöödena lisatasu alla.
Kui leping sisaldab ka vundamendi ehitust, planeerime selle teostuse juba eelarve koostamise faasis nii, et vundament saaks valmida paralleelselt elementide tehases tootmisega.
Selline töökorraldus võimaldab alustada paigaldust õigel ajal ning tagab kogu ehitusprotsessi sujuvuse.
Tootmisetapp algab tööjooniste lõpliku kinnitamisega. Seejärel valmistatakse meie tehases kõik vajalikud betoonelemendid ja kandvad konstruktsioonid vastavalt projektile. Akende, uste ja muude komponentmaterjalide tootmine toimub meie sertifitseeritud partnerite juures, kelle tarneaegadega arvestame kogu ehitusgraafiku koostamisel.
Tootmine toimub kontrollitud tehasekeskkonnas – see tagab, et kõik elemendid on täpsed, kvaliteetsed ning ilmastikutingimustest sõltumatud. Sama standard kehtib ka partnerite tarnitud detailidele, mis läbivad enne paigaldust meie sisekontrolli.
Kui sõlmitud leping sisaldab ka vundamendi ehitust, teostatakse see tavapäraselt paralleelselt elementide tootmisega.
Selline töökorraldus lühendab kogu ehituse koguaega ja võimaldab alustada paigaldust kohe, kui tehases valminud elemendid objektile saabuvad.
Tänu sellele paralleelsele töökorraldusele kulgeb paigaldusprotsess kiiresti, sujuvalt ning vastavalt kokkulepitud ajagraafikule.
Kui tootmine on lõppenud, transpordime valmis seinapaneelid, katusekonstruktsioonid ja muud elemendid otse Teie ehitusplatsile. Paigaldust teostab meie kogenud meeskond, kelle igapäevatöö on elementmajade täpne ja kiire kokkupanek.
Sõltuvalt valitud paketist sisaldab see etapp näiteks:
- katusekatte paigaldamist,
- akende paigaldust,
- ning muid vajalikke töid, et maja saaks kindla vormi.
Paigaldusprotsess kestab tavaliselt vaid mõnest päevast kuni nädalani, sõltuvalt maja suurusest ja keerukusest. Selle etapi lõpus on Teie kodu tugev ja ilmastikukindel „karp“, mis on valmis edasiseks viimistlustööks.
Objektitööd hõlmavad kõiki tegevusi, mis on vajalikud hoone püstitamiseks alates ehitusplatsi ettevalmistusest kuni majakarbi valmimiseni. See etapp on oluline osa terviklahendusest, sest just siin luuakse tugev ja korrektne alus elementide paigalduseks.
Teostame:
- maatööd ja ehitusplatsi ettevalmistuse,
- väliskanalisatsiooni ja vee liitumised hoonega,
- vundamendi ehituse koos vajalike kommunikatsioonide läbiviikude ja isolatsioonikihtidega,
- välisseinte ja kandekonstruktsioonide paigalduse,
- siseseinte püstitamise,
- elektri-, toru- ja ventilatsioonisüsteemide ettevalmistuse ning paigalduse,
- ning kõik ülejäänud tehnosüsteemid vastavalt projektile.
Sõltuvalt valitud paketist – Must karp, Valge karp või Võtmed kätte – jätkub selles etapis ka siseviimistlus, mis teostatakse meie spetsialistide ja pikaajaliste partnerite poolt.
Kõiki tööetappe kontrollitakse süstemaatiliselt, et tagada vastavus projektile, paigaldustäpsus ning kõrge ehituskvaliteet. Nii võib klient olla kindel, et kogu protsess alates maapinnatööst kuni paigalduseni on läbiviidud korrektselt ja tulemus on tehniliselt usaldusväärne.
Kogu projekti vältel peetakse korrektselt ehitustööde päevikut, koostatakse kaetud tööde aktid, saatelehed ning kõik muud dokumendid, mis on vajalikud kasutusloa taotlemiseks. Kõik need kuuluvad Stonelle koostöölepingu juurde ning tagavad, et vajalik dokumentatsioon on täielik ja korrektselt vormistatud juba enne üleandmisfaasi.
Kui ehitustööd on lõpetatud, viime läbi põhjaliku kvaliteedikontrolli, et kinnitada hoone vastavus projektile, ohutusnõuetele ja kvaliteedistandarditele. Kontrollime nii konstruktsioone, tehnosüsteeme kui ka viimistlust. Samuti vaatame üle kogu käigus kogutud dokumentatsiooni, et tagada valmisolek kasutusloa protsessiks.
Enne ametlikku üleandmist saate objekti koos meie spetsialistiga üle vaadata ning vajadusel märkused esitada. Kõik tähelepanekud fikseeritakse ja kõrvaldatakse enne lõplikku üleandmist.
Üleandmise käigus:
- tutvustame Teie uue kodu tehnosüsteemide toimimist (küte, ventilatsioon, elekter, automaatika),
- anname üle hooldus- ja kasutusjuhendid,
- väljastame garantiidokumendid,
- ning vormistame üleandmise akti, mis kinnitab hoone valmidust kasutamiseks.
Tänu selgele dokumentatsioonile ja põhjalikule kontrollile saate kindlustunde, et kõik tööd on teostatud korrektselt, kõik nõuded täidetud ja maja on valmis kasutusloa taotlemiseks ning sissekolimiseks.
Personaalsed lahendused vastavalt Sinu projektile
Vajaksid abi või on tekkinud
mõni täpsustav küsimus?
Meie õlgadele saate ka jätta kõik maja ehitusega kaasnevad tööd ja materjalide tarned.

